Club de Golf Hacienda San Gaspar

¡Aprovecha la preventa y adquiere
tu nuevo hogar!

¡Bienvenido a Villas del Sol, donde lujo y confort se encuentran en un entorno natural único!

En nuestro exclusivo desarrollo ubicado en el Club de Golf Hacienda San Gaspar, ofrecemos viviendas de alto nivel que combinan diseño elegante, funcionalidad y una conexión inigualable con la naturaleza.
Cada residencia ha sido construida con los más altos estándares de calidad y está diseñada para ofrecer un estilo de vida lujoso y cómodo. Nuestro compromiso es brindarte un hogar que no solo cumpla con tus expectativas, sino que las supere.

Características

Cada casa tiene 200 metros² de construcción repartidos en 3 niveles.
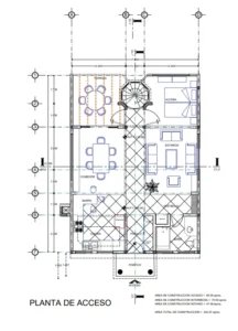
Primer nivel concepto abierto donde encontrarás una amplia Sala, Comedor, Cocina y 2 terrazas para disfrutar.

Primer nivel

Concepto abierto donde encontrarás una amplia Sala, Comedor, Cocina y 2 terrazas para disfrutar.

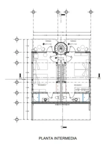
Planta media

2 recámaras con baño individual y closet.

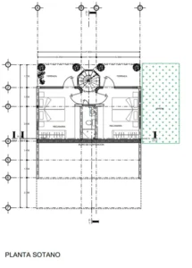
Planta baja

2 recámaras con baño individual y closet.

¡Últimas 3 casas disponibles!

Ubicación

Casa San Gaspar, 62555 Juitepec, Morelos

Alrededores

Club de Golf

Escuelas y centro comerciales

Pedregal de las fuentes

Golden Woods

Plaza Centro Cibeles

Plaza Cedros Civac

Soriana

Wal-Mart

Sams Club Civac

Zona Industrial Civac

¡No pierdas la oportunidad de vivir en el lugar que siempre has soñado!

Contacta con nosotros para obtener más información, aprovechar la preventa y descubrir cómo puedes formar parte de esta exclusiva comunidad en Club de Golf Hacienda San Gaspar.

Scroll al inicio